Rif: IMMO-106316877
CAMPERTOGNO
VERCELLI
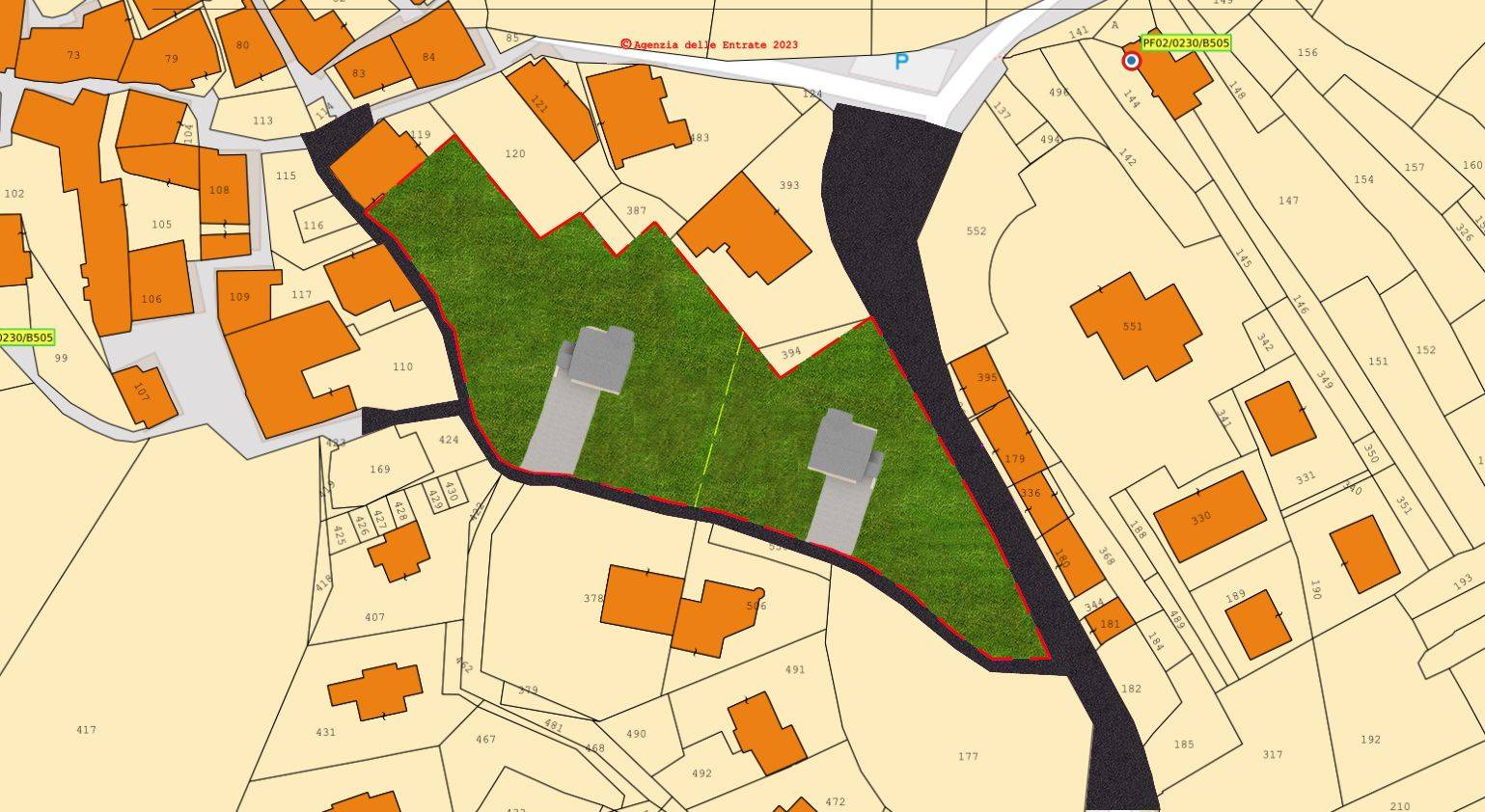
Nel centro della Frazione Quare nel comune di Campertogno, Alta Valsesia, proponiamo area edificabile urbanizzata con possibilità di lottizzazione per realizzazione di una, due o tre unità abitative autonome su singolo lotto. L'area sarà assoggettata a PEC nel quale verrà definito il tipo di lottizzazione che si intenderà effettuare ed il soddisfacimento da parte del lottizzante degli standard urbanistici.
La soluzione proposta prevede la suddivisione in n. 2 lotti: il primo lotto con una superfice di mq 1.115 ad Eu. 115.000 , mentre il secondo lotto con una superfice di mq 1.026 ad Eu. 100.000 (iva inclusa).
La soluzione proposta prevede la suddivisione in n. 2 lotti: il primo lotto con una superfice di mq 1.115 ad Eu. 115.000 , mentre il secondo lotto con una superfice di mq 1.026 ad Eu. 100.000 (iva inclusa).








